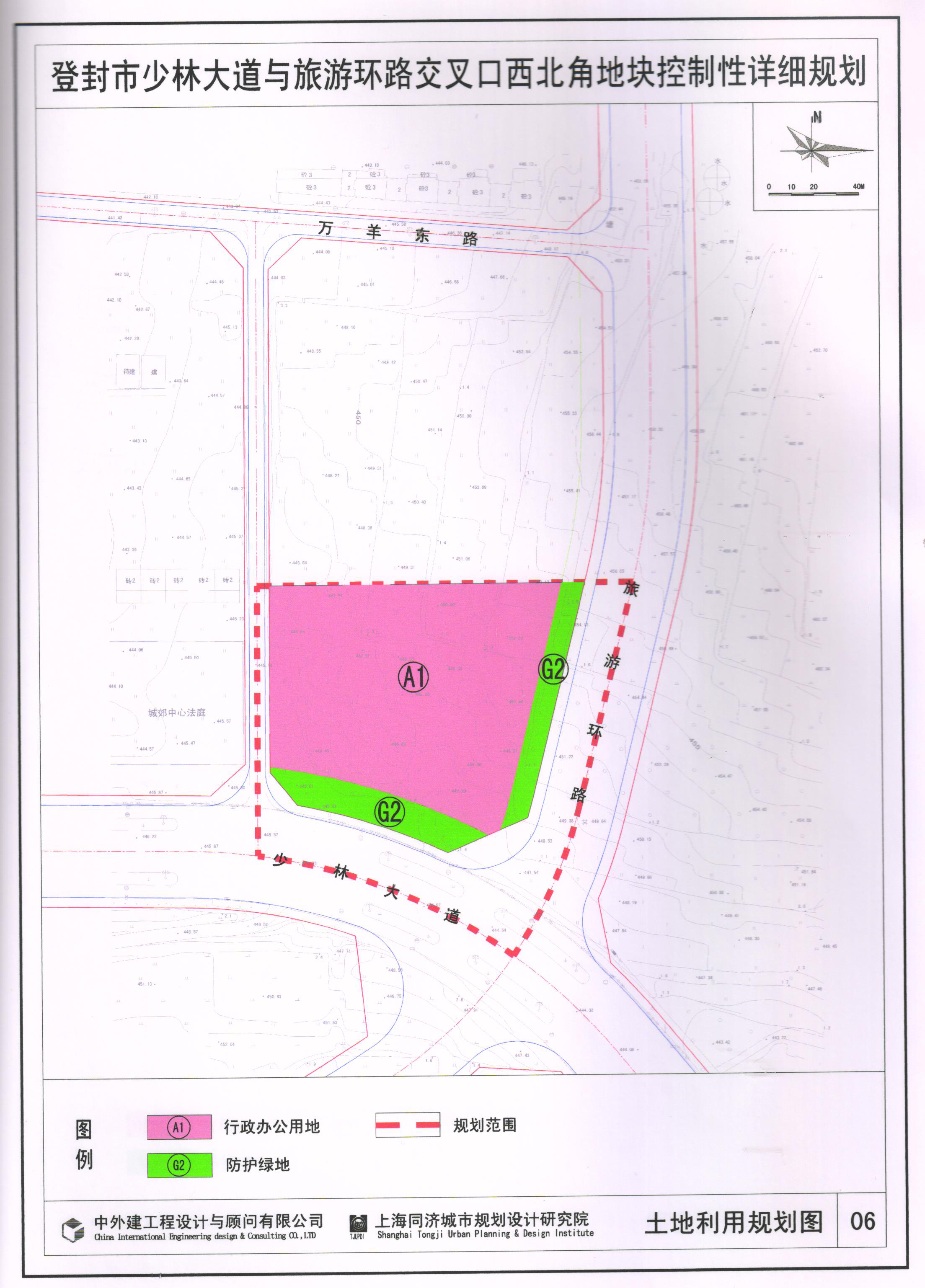
项目名称:《登封市少林大道与旅游环路交叉口西北角地块控制性详细规划》C-20-02、C-20-03、C-20-04地块修改必要性论证
类 型:变更批前公示
公示类别:控制性详细规划
用地位置:登封市紫霞峰路与少林大道交叉口西北
规划面积:拟修改用地面积1.37公顷
公示期限:30日(2025年1月30日—2025年2月28日)
公示单位:登封市自然资源和规划局
公示内容:区位图、现状建设情况、原用地图、原指标
修改原因:为集约节约利用土地,经组织编制机关组织论证,认为确需修改的。
拟修改内容:拟对该区域内用地性质等进行修改
咨询电话:62989067
附加说明:查询详细内容,请出示身份证明,到我局办理相关手续后查询。依据《中华人民共和国城乡规划法》、《中华人民共和国行政许可法》等有关法律法规,特此公示。如有意见和建议,请于公示时间内向我局反馈。
详细内容:为确保该规划工作的顺利实施,依据《中华人民共和国城乡规划法》有关规定,按照市委、市政府政务公开的要求,以公开透明、依法行政、规范高效、廉洁公正、强化监督为原则,以实现城乡规划管理工作公开、公正、民主、高效、廉洁、规范为目标,促进城乡规划管理的科学化、民主化、法制化,不断提高公众参与城乡规划的意识,维护全社会对城乡规划的知情权与监督权,使城乡规划更加科学、合理和规范,保证城乡建设的健康运行,促进郑州市经济健康持续发展。现将该项目控制性详细规划设计方案进行公示,欢迎社会各界对该项目提出宝贵意见和建议。




豫公网安备 41010202002520号